Listing provided courtesy of Janet Stevens-Moore of BRUIN TROJAN REALTORS, INC. Last updated . Listing information © 2025 Sandicor.
Asking Price: $150,000
1000 Butte, Big Bear CA 92314
Community: 
This Lot property was built in  and is priced at $150,000. Please see the additional details below. 
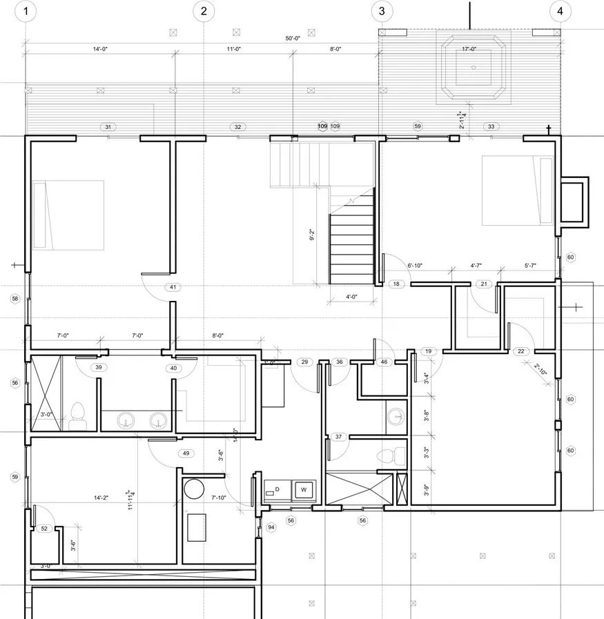
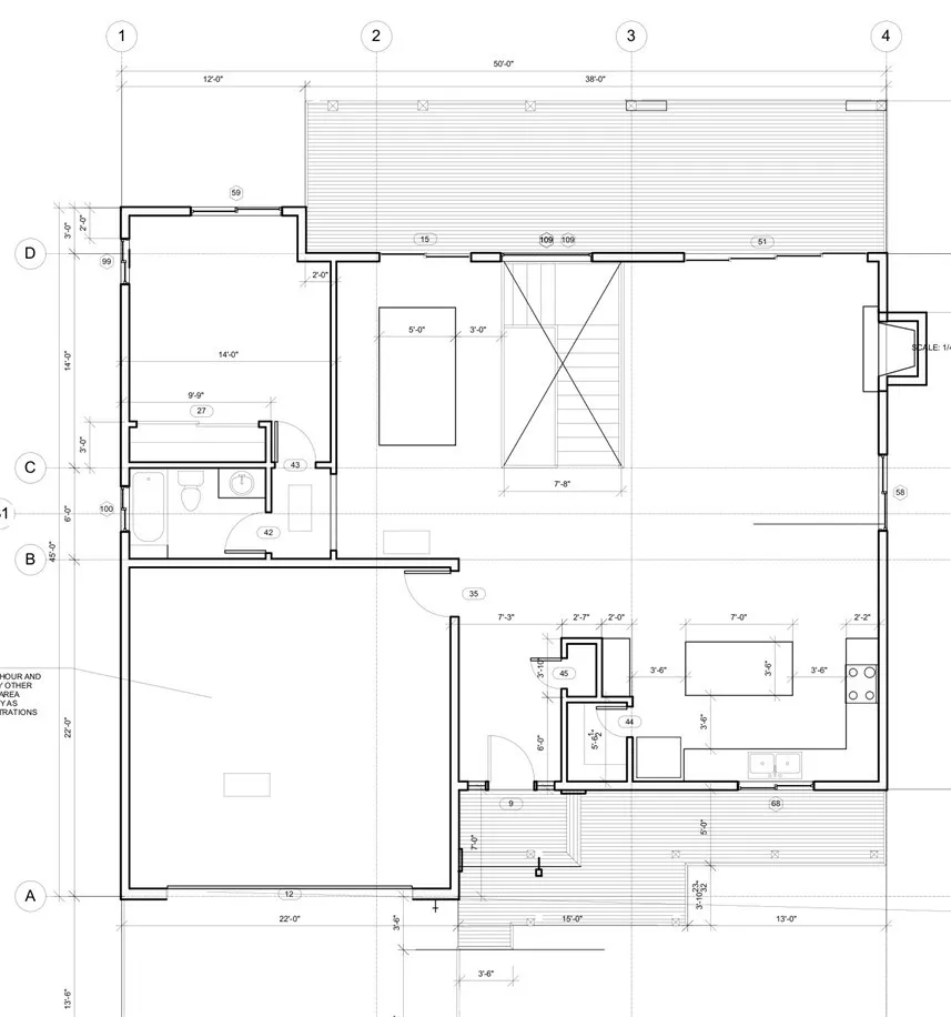
Beautifully treed downslope lot in desirable Moonridge area of Big Bear City. This 7,200 SF (90 x 80) parcel offers an exceptional opportunity to build your dream mountain home! A sewer line runs along the back of the property at the lowest point, allowing for a gravity-flow system  no pump is required. All utilities are available. The sale includes a complete set of architect-designed building plans for a stunning two-story, 3,500 SF residence featuring 5 bedrooms and 3 baths, plus soils report, property survey, and letters from utility companies confirming service connections. Five architectural renderings and the floor plan are available in the listing photos. This is a ready-to-go package  just bring your vision to life! Perfect for an investor, builder, or anyone seeking a turn-key opportunity to create a custom home in one of Big Bears most sought-after neighborhoods. Includes all plans, reports, and documentation.





















